Více informací? Volejte: +420 777 814 103
Obývací pokoj, pronájem malého bytu 2+kk, Rudolfovská, České Budějovice
Popis nemovitosti:

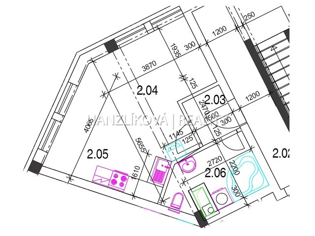
Nabízíme k pronájmu částečně zařízenou bytovou jednotku 1+1 v bytovém domě v atraktivní lokalitě v centru města, a to v Rudolfovské ulici. Byt o celkové výměře cca 35,5 m2 se nachází ve 3.NP. Byt se skládá z: předsíně, obývacího pokoje s kuchyňským koutem, ložnice a koupelny s vanou a toaletou. Byt je vybaven: kuchyňská linka včetně el. spotřebičů (lednice s mrazákem, myčka, sporák, varná deska, digestoř, pračka, mikrovlnka), jednolůžková postel v ložnici, šatní skříň v předsíni, osvětlení ve všech místnostech, vybavení koupelny. Topení a ohřev vody je zajištěn vlastním plynovým kotlem. Úklid domu je zajištěn úklidovou firmou. Veškerá občanská vybavenost je v těsné blízkosti, historické centrum města je vzdáleno jen pár minut chůze od domu. Nájemné je uvedeno bez záloh na energie. K bytu náleží sklep v přízemí domu (cca 2 m2) a je možné si k bytu pronajmout samostatnou garáž ve Štítného ulici za úplatu 1.500,–Kč/měs. Byt bude k dispozici po domluvě (ideálně od 1.5.2026).

Číslo nemovitosti:
0000003318
realitní makléř: Lenka Michalová (Klimešová)
Prodejce:
Lenka Michalová (Klimešová)
telefon: +420 606 772 414
lenka.klimesova@hanzlikovareality.cz

Pronájem malého částečně zařízeného bytu 1+1, ul. Rudolfovská

Typ nemovitosti:
Byt
Typ bytu:
1+1
Operace:
Pronájem
Cena:
11.500 ,- za měsíc+ zálohy na energie 2.500,- + internet 500,- + kauce 15.000,-
Vlastnictví:
Osobní
Adresa:
České Budějovice
Rudolfovská tř.
K nastěhování od:
1.5.2026
Plocha podlahová:
35 m2
Plocha sklepa:
2 m2
Podlaží:
3. podlaží z 5 podlaží celkem
Stav objektu:
Novostavba
Konstrukce:
Cihlová
Umístění objektu:
Centrum obce
Komunikace:
Asfaltová
Číslo nemovitosti:
0000003318
Vydaný certifikát:
C - Úsporná
Typ certifikátu:
vyhláška č. 78/2013 Sb.
Typ certifikátu:
vyhláška č. 78/2013 Sb.

Rychlý kontakt:

HANZLÍKOVÁ REALITY s.r.o.
tel: +420 777 814 103
hanzlikovareality@seznam.cz

Adresa:
B. Smetany 2773/36
České Budějovice 3
PSČ 370 01